MedienpartnerElement 10
#1300

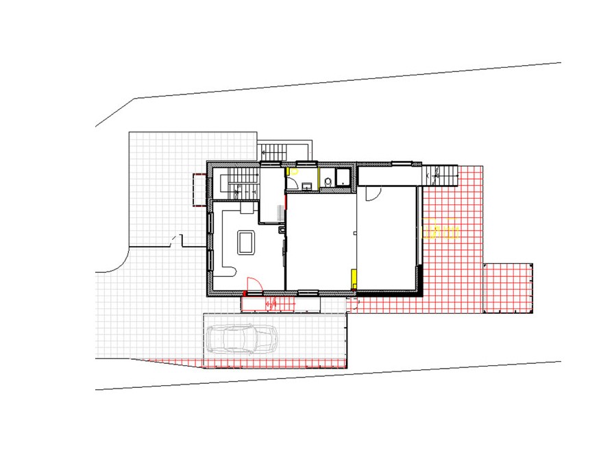
EFH Anbau und Carport | Wohlen (AG)

Wohlen

2013

Anbau und Sanierung

Eingeschossiger Flachdachnbau mit Sanierung der kompletten Fassade. Ausbau Erdgeschoss und Sanierung aller Boden-, Wand- und Deckenflächen. Aussenbereich mit neuem Carport.

Vorprojekt | Bauprojekt | Baugesuch | Ausschreibung | Planung | Bauleitung

EFH Anbau und Carport | Wohlen (AG)
Zurück